top of page

House Development -
South Croydon, CR2
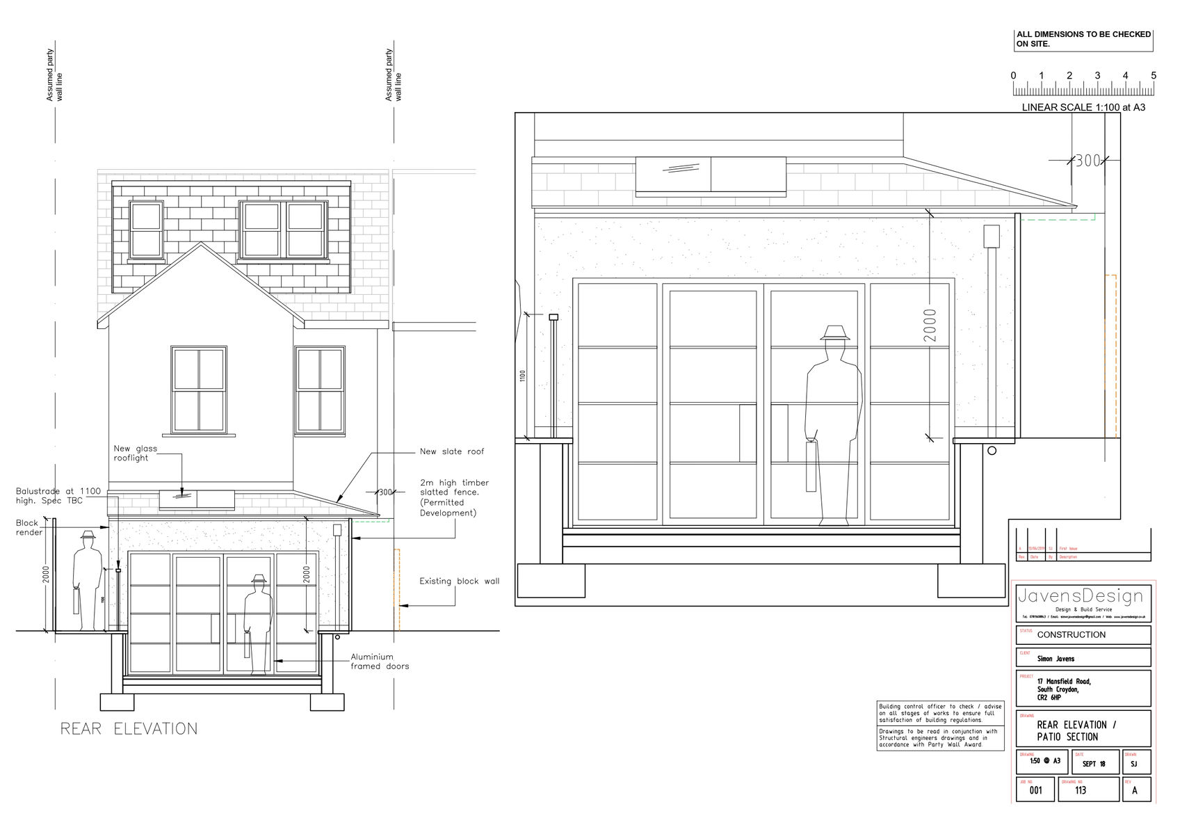
This property in south London has been developed to a very high standard throughout. The internals have been completely re-arranged, A roof extension as well as a submerged lower ground rear extension have been added. The square footage has near doubled from the original property and yet the sympathetic design minimizes the impact on the neighbouring properties. The interior design is mostly of clean but traditional style to the remaining original part of the house, where it flows to a more bistro + moderns style to the kitchen and living room. Everything has been carefully designed to fit seamlessly together thanks to numerous detailed drawings and management of builders.

bottom of page















































